Triple Decker Challenge: Fort Hill Solar District

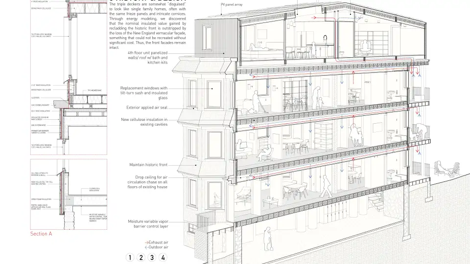
A Solar District approach aggregates 25 neighborhood buildings for a combined output of 706,275 kWh/year, with the net excess available to a third-party purchaser (e.g. City of Boston). Existing energy demand is lowered with application of an insulating envelope; gas-fired boilers are replaced with ERVs and mini-split heat pumps. Most of the DER is applied from the building’s exterior, thus avoiding the mess of demolition and the cost of tenant relocation. Insulated mega-panels are applied on three sides. Building cavities are filled with cellulose insulation.

westfaulkner fastcompany 2021 4

Published: June 14, 2021
Categories: Retrofit