1775 002

Sonoran Desert Passive House

“The magic of the desert is hard to define.”
— Henno Martin, The Sheltering Desert

Idea

This minimalist residence sits on ten acres of undisturbed Sonoran Desert at the base of the Santa Catalina Mountains in Tucson, Arizona. This project grew out of my love and respect for the desert that began years earlier while studying architecture at the University of Arizona. Upon graduating, my initial plan was to relocate to Chicago for a few years to work at a national firm, and then return to Tucson to live and practice. Those few years became a few decades, but that plan finally came to fruition in 2019.

Photos by Nick Merrick unless otherwise noted.
Photos by Nick Merrick unless otherwise noted.

Sonoran Desert

The Sonoran Desert covers 100,000 square miles, encompassing the southern half of Arizona, southeastern California, and much of the Mexican state of Sonora. Compared to other deserts, it supports a rich diversity of animals and plants. The most successful desert dwellers have strategies for water and shade.

The most iconic symbol of the Sonoran Desert is the saguaro cactus. These cacti can grow to 40 or 50 feet tall and can live up to 200 years. They have adapted to the environs with strategies that includes their vast root network, which extends far beyond the plant and stores large quantities of rainwater, and ribs that provide shade. Additionally, their spines both protect them from animals and also provide shade.

There is a quiet serenity to the desert, with vast landscapes that seem to go on forever. From the air, the desert looks like a barren wasteland, but as one gets closer its magic becomes apparent.

Climate

Although there are many Phius-certified buildings in the northern United States, there are few in southern climates. In fact, this is the first Phius project certified for the hot-dry climate zone (2B) of Phoenix and Tucson. Sunshine is abundant—it is sunny 85% of the time, and there are twice as many cooling degree days as heating degree days. In 2024, Tucson had 112 days over 100°F, topping the historical norms. While rare, snow is possible and winter temperatures can dip to 20°F. Tucson is extremely dry, receiving only about 11 inches of rain per year. Humidity is low for much of the year, but monsoons in mid-July through September bring tropical humid air and rain.

Principles and Goals

I became a Certified Phius Consultant in 2013, convinced that this was the best path to energy efficiency. After designing several Phius projects that did not go forward, I was determined to use Passive House principles for my own home to design the most efficient Phius-certified project I could in the Sonoran Desert. It was to be a proof-of-concept/learning laboratory with verified measured results.

From the design concept to energy modeling, the integration of art and science—minimalism and conservation—were the project’s guiding principles. The plan was to use the minimalism of the project to contrast with the abundance of the surrounding natural environment—to focus the occupant’s view on nature’s beauty. Creating a serene environment as a respite from the chaos of modern life and enhancing the human connection to this beautiful landscape was the goal.

Site and Environment

The site was selected to support design concepts. Knowing that east- or west-facing windows receive direct solar gains in this climate, I chose a site with views to the north and south, allowing for an elongated east-west plan. This happily coincided with spectacular views to the north of the Santa Catalina Mountains.

The biodiversity of the area is astounding—the architecture responds with a minimal aesthetic that contrasts with nature. Like the inhabitants of the desert, this building adapts and responds with tools to provide shade and maximize water collection.

Covered with multiple plant species, the site is highlighted by centuries-old giant saguaros. The building’s footprint was governed by the existing vegetation, the desired views of the Santa Catalina Mountains, and the harsh desert climate. Only 1% of the property was utilized. The other 99% has not been developed and will not be developed in order to preserve its natural flora and fauna.

Overall, a deep respect for the fragile nature of the Sonoran Desert guided design decisions. The preservation of the natural landscape was paramount. Existing saguaro cacti and mesquite trees were not removed. Instead, the building was planned around them.

In addition, the existing landscape was preserved due to minimal site disruption, with any displaced plants replaced with native species. Finally, rainwater and greywater systems were installed to enhance the existing wildlife habitat. 

Photo courtesy of Rick Herriman
Photo courtesy of Rick Herriman

Building Form

In the blazing sun of the desert, the power of shade can’t be overstated. As an oasis, the lure of shade attracts all life.

The roof is the defining element of the project, one simple uninterrupted form floating on steel tubes which shade the building and outdoor areas below it. Mirroring the roof, large decks on each side hover above the desert, creating beautiful spaces to relax and connect with the landscape.

The building form is two linear bars organized around a void space—the circulation spine. The east-west axis of the spine minimizes the portion of the building facing the western afternoon sun, allows in the prevailing winds, and provides optimal orientation for photovoltaic panels. The entry is into this circulation spine, with glass doors at either end offering beautiful views to the east and west. Another feature of the orientation is that during the equinox, at sunrise and sunset, the corridor is bathed in sunshine.

Once entering the north bar of the main space, an expanse of glass displays the spectacular front range of the Santa Catalinas and connects the interior with the landscape.

The minimalist design emphasizes the natural environment. By keeping the building’s aesthetics simple, one’s gaze is drawn to the abundance of surrounding natural environment. The white cooling color of the stucco and steel contrasting with the desert is similar to traditional structures.

Look Inside
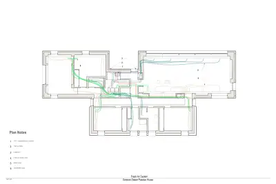
Figure 1 shows sections of the Sonoran Desert Passive House. All figures courtesy of Brubaker Architects.
Figure 1 shows sections of the Sonoran Desert Passive House. All figures courtesy of Brubaker Architects.

On the interior the minimal aesthetic continues with uninterrupted ceilings, recessed bookshelves, built in cabinets, and light colors. The kitchen consists only of a monolithic island with flush cabinets enclosing all the necessities. The tile floors flow seamlessly from interior to exterior, enhancing the connection with the landscape. Due to the ample daylighting, lights are not needed during the day. At night indirect LEDs bathe the spaces in soft light, creating a feeling of tranquility.

The sloping site hides the garage under the west side of the building, further enhancing the simplicity and concealing a normally unsightly element (see Figure 1). While not a part of the conditioned envelope, the garage stays cooler being underground.

Look Inside
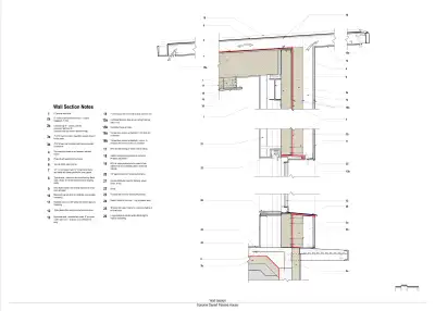
Figure 2 shows the detailing for the wall assembly.
Figure 2 shows the detailing for the wall assembly.

Envelope

Conceptually, the building is a highly insulated box shaded by a ventilated roof and wall system (see Figure 2). The bottom of the box consists of both insulated concrete foundations and an insulated floor slab. Metal studs, selected for termite resistance and recyclability, form the wall structure while truss joists support the roof. This structure is wrapped with a ZIP system that provides a water and air resistant barrier. The assembly was tested after the ZIP system was installed to ensure there were no air leaks before it became difficult to fix them. The system passed: it was twice as tight as the Phius requirement.

Rockwool mineral wool was used for the majority of insulation. It contains at least 50% recycled content and is recyclable. The mineral wool insulation has an optimal combination of durability and resistance to threats such as mold, water damage, fire, and insect infestation. For the walls, six inches of continuous mineral wool mitigates the metal studs’ poor thermal properties. The benefit of using insulation versus mechanical systems for cooling is that money spent on insulation will lower energy use for the life of the building and is maintenance-free.

After studying ground temperatures, it was decided to insulate the foundation walls and the slab to prevent a constant heat load around the building’s perimeter. Insulation below the slab also keeps the radiant heating in the building, versus heating the ground. The tile on the concrete slab provides thermal mass and helps keep the building cool in the cooling season—in the winter sunlight warms the tile floors to provide heat.

The triple-glazed windows were strategically located during extensive WUFI modeling. While a large expanse of windows faces the mountains to the north in the living room, other rooms have small openings, resulting in a 13% window-to-wall ratio.

In this climate the sun’s direct rays can heat the stucco to well over 130°F. To combat this radiant energy, a ventilated airspace was created. The system is similar to a rain screen but adapted to the desert in what I refer to as a Sun-Shade system. The Sun-Shade system creates a continuous ventilated airspace around the structure, venting off the sun’s radiant energy and reducing the temperature at the insulation by nearly ten degrees (see Figures 3a and 3b). Early in the design phase we did extensive energy modeling with WUFI Plus software to determine the best combination of thermal mass, cost, shading, and thermal properties. This system is less expensive and performs as well as thermal mass with continuous external insulation.

The roof portion consists of metal studs that rest on the structure of the insulated box, creating an airspace. They also cantilever out from the box to create roof overhangs. The wall portion consists of metal studs that hang from the cantilevered roof studs. Like the roof studs, these are also used as spacers to create an airspace. The airspace of the walls is connected to the roof airspace, creating a continuous air layer around the insulated box. Perforated metal at the bottom of the walls brings in fresh air and vents along the roof edge allow the heated air to escape.

1775 007 1729210467

Keeping the direct sun's rays off of the glass is critical in this climate. The Sun-Shade wall system’s extra depth acts as a shading device for the windows during the cooling season and creates large window sills which reflect light onto ceilings for daylighting. The windows are located towards the interior of the system and evoke the inset windows of traditional adobe buildings.

The exterior materials for the system include a white metal roof that reflects heat, reduces the heat island effect, will endure the life of the building in this climate, and later can be recycled. The building’s exterior walls consist of synthetic stucco as it is commonly available, inexpensive, and resistant to heat and cracking.

Thermal Bridging

Careful detailing avoided thermal bridging. For the foundation, thermal breaks are used between interior and exterior slabs. The walls of the Sun-Shade system are hung from the roof and transfer the wind load at the bottom with Cascadia fiberglass clips to avoid thermal bridging. The exterior steel beams supporting the roof do not penetrate the wall system but are supported with pipe columns in the Sun-Shade’s airspace.

Water

Obviously, water is critically important in the desert and was a consideration from the project’s inception (see Figure 4). The roof provides an extensive surface for rainwater collection—45,000 gallons of rainwater annually. This water is first directed into a trough on the south side of the building, and then to a system of cascading bioswales. These bioswales retain water instead of letting it become runoff. They create mini oases for both native plants and wildlife, including quail, roadrunners, lizards, toads, rabbits, ground squirrels and Gila monsters. Directing water to the building’s south side collects it in one location, facilitating future rainwater storage.

Figure 4 illustrates the project's approach to managing rainwater, greywater, and moisture.
Figure 4 illustrates the project's approach to managing rainwater, greywater, and moisture.

Only natural soaps and detergents are used in funneling greywater water from sinks, showers, and laundry into the landscape. This water has especially benefitted the mesquite trees, which have flourished.

Look Inside
Figure 5a depicts the fresh air system for the home.
Figure 5a depicts the fresh air system for the home.

Mechanical Systems

For this cooling-dominated climate, the selection of a cooling strategy is critical for low energy use (see Figures 5a and 5b). Historically, evaporative systems have been used and are very energy efficient, but they are effective only when humidity is low. With rising temperatures and humidity during the monsoons, evaporative systems are not effective when most needed—July and August.

A radiant cooling system was chosen as it is extremely energy efficient, comfortable, silent, and invisible. It is ideally suited for this dry desert climate. It also contributes to the minimal aesthetic as there are no diffusers to interrupt the ceilings. Radiant cooling is much more efficient than forced air cooling—as much as 40%, partially due to the heat capacity of water, as well as the temperature difference between the outdoor air and the temperature of the water leaving the heat pump. A hydronic system for cooling is run at a much higher temperature (60°F) than a refrigerant-based system, greatly increasing efficiency. This Chiltrix system has a COP of 9 when running at 60°F. In addition, the water-based system eliminates the need for refrigerant lines, reducing the possibility of coolant leaks. A radiant system also benefits building efficiency as zones are much easier to create than with forced air systems. Multiple zones can more easily respond to varying temperatures in different building areas.

Look Inside
Figure 5b illustrates the ceiling radiant tubing system and layout.
Figure 5b illustrates the ceiling radiant tubing system and layout.

In this project an air-to-water heat pump provides chilled and hot water to a hydronic radiant cooling and heating system. The ceilings are covered with hydronic tubing in this cooling dominated climate. As the building requires a small amount of heat in the winter, just the perimeter of the floor slab has radiant tubing for heating.

It’s important to note that in radiant cooling systems the water temperature for cooling must be kept above the room’s dewpoint. In the desert, this is rarely a problem except during the monsoons when the dewpoint creeps up near 70°F. A dehumidifier keeps the dewpoint below 60°F during those two months.

Two elements increase air quality: The radiant system creates a draft-free environment that enhances comfort, while the ERV provides an efficient source of fresh air. To further the minimalist aesthetic, ERV supply and return tubing was integrated into the indirect lighting coves to eliminate diffusers.

In cold climates, a heat pump water heater creates cold air which then needs to be heated. Here in the desert the byproduct of the heat pump water heater’s cold air is effectively “free cooling”. The dehumidifier fan distributes this “free” cold air throughout the house.

Resilience

Every decision for this building was made with the goals of resilience and extended service life.

Initially, renewable energy in the form of photovoltaics were installed. Later, to achieve a net zero goal, more panels were added totaling 10kW along with a battery back-up system. In 2023 the project achieved net positive, despite it being one of the hottest years on record. EV charging with excess solar power was also incorporated to allow for solar powered transport.

Additionally, the building was designed for changes in the family’s life stages. An extra bedroom was included for caregiving for aging relatives, and the design incorporates ADA elements such as an entry ramp, zero threshold doors, an adaptable bathroom, and blocking in the walls for future grab bars.

1775 010

Lessons Learned/Fine Tuning

Several lessons were learned during this project. Originally, an evaporative cooling pad was installed in the intake airflow for the ERV with the idea that it would cool the incoming air, the ERV bypass would open, and this cooled air would be distributed to the building, reducing the load on the radiant system. The intent was to have the evaporative cooler running except during the monsoons. During commissioning, conflicts arose between the ERV controls and dewpoint sensors meant to activate the evaporative cooler. The conflicts could not be resolved so the evaporative pad was removed. It was a good idea, but too complicated in practice.

Another lesson was learned regarding the amount of humidity brought in by the ERV during the monsoons. At first the ERV was run at 0.3 ACH. That became a problem when the dewpoint was near 60°, which caused the dehumidifier to run nonstop. Reducing it to 0.15 ACH solved this problem and did not produce any noticeable downsides.

The amount of heat created by the dehumidifier was also surprising. Originally, all of the flow from the dehumidifier was sent to the kitchen. This heat was noticeable in such a well-insulated and airtight building. Luckily, it was easy to reroute this air and divide it between several rooms. Since the dehumidifier is adjacent to the radiant system buffer tank, a cooling coil was added into the dehumidifier supply stream to cool the air. We also added a cooling coil into the ERV airstream which brings the supply air sent to the house down to 60°F.

Measured Performance

Various systems monitor and measure performance. To measure the Sun-Shade wall system, temperature sensors were placed in the stucco, in the ventilated air space, and behind the six inches of continuous insulation. Sensors were also placed in the roof, roof airspace, and the ground at 2 feet, 4 feet, 7 feet, and 10 feet below grade. The sensors have confirmed the extremes that the wall systems endure. Even in December with outside temperatures of 70°F the stucco fluctuates between 35°F to 95°F. The airspace was effective at reducing the sun’s radiant energy—consistently reducing the temperature at the insulation by 10°F from the stucco temperature. Ground temperatures at 2 feet below grade remained above 80°F from mid-May until October and were around 90°F for about two months. Unlike air temperatures, these ground temperatures remain elevated at night. These ground temperatures confirm the benefit of the decision to insulate the slab and foundation walls.

A SiteSage application measures energy efficiency, including monitoring PV panels and all circuits. The building was certified under Phius + 2015 (Phius 2021 targets for this climate were made slightly less stringent). Phius modeling targets for HVAC were 10,540 kWh/yr. As measured, the three-year HVAC average was 6,600 kWh/yr. The three-year average of total energy use was 13,840 kWhr/yr, with solar providing 17,490 kWhr/yr, making the project net positive (see Figure 6).

figure 6
Add alt text to edit caption

Educational Uses

This residence was designed as a living laboratory and a tool for demonstrating both design and current building science for a desert environment. It was intended to have a broader reach beyond housing the current occupants. The combination of energy modeling and building monitoring has yielded a wealth of data for learning opportunities.

Now it seems my path from the University of Arizona has come full circle. Currently I teach design, building science, and Phius detailing at the university. Tours of the house for students and other architects are conducted each semester. I use the themes in this project to show the greater architectural community what can be achieved via Passive House principles. For the past two years it has been a model in my classroom for the Department of Energy’s Solar Decathlon. In addition, as a member of the Passive House community, I’ve used this residence as a model in lectures at national conferences on solutions for resilience in hot-dry climates.

Conclusion

All of these details have been integrated to create a modern, serene oasis—the first Phius-certified project in Tucson, and the first certified in the hot-dry climate zone 2B. The project is wonderfully comfortable to live in, with steady temperatures even on the hottest days and views of wildlife that are a constant joy. My wife, Anita, and I experience the spectacular views of both sunrise and sunset, with the building acting as a beautiful white canvas reflecting their red, orange, and purple hues.

Published: October 18, 2024
Author: David Brubaker