23 0063 002

NYU to Retrofit Historic Rubin Hall

With more than 53,000 students enrolled, New York University (NYU) is the largest private university in the United States. More than 19,000 people work at the school, making it one of the biggest employers in New York City. Though it is primarily centered around Washington Square Park and downtown Brooklyn, NYU is a constellation of some 200 buildings, with its administrators, staff, and faculty spread across 15,000,000 square feet of leased or owned space throughout Brooklyn and Manhattan.

One of these buildings is Rubin Hall.

Located at the northeast corner of Fifth Avenue and East 10th Street, Rubin Hall was erected in the 1920s as a luxury hotel. It was then purchased by NYU to serve as a student residence in 1964 and designated a historic landmark by the New York City Landmarks Preservation Committee (LPC) in 1969. Like many other buildings from the time, Rubin was constructed in a Neo-Federal style. It is clad in 4 inches of red brick that surround 8 inches of terracotta block, all supported by structural steel columns and beams with cast-in-place concrete floor slabs. Also like many other buildings from the 1920s, the exterior envelope is uninsulated. It was designed to run on fuel oil and steam, and the windows still serve as the sole means of cooling and ventilation for the student residents. There is no ductwork that could provide conditioned air to the residents, and a combination of landmark and design restrictions make the addition of window air conditioners untenable.

Without a retrofit, this means open windows in the winter and sweltering conditions during the first and last months of the academic year for approximately 680 first-year student residents. As New York City is expected to see more frequent and intense heat waves, the latter problem is expected to get worse.

These conditions are not unique to the 156,000-ft2, 17-story Rubin Hall. An estimated 1 billion square feet of multifamily housing within New York City alone was constructed using similar methodologies, meaning thousands of multifamily buildings within the five boroughs now face similar problems.

From Pledge to Proposal

According to Cecil Scheib, chief sustainability officer for NYU, the air conditioning issue was just the tip of the iceberg. In 2007, NYU pledged to reduce their buildings’ greenhouse gas emissions by 30% from the baseline year of 2006 within a decade. They reached that goal after only five years. Subsequently, NYU has also pledged to halve their 2006 GHG emissions by 2025 and committed to carbon neutrality by 2040. As buildings comprise 99% of NYU’s emissions, the university recognized that reaching these goals without deep energy retrofits of older buildings, like Rubin Hall, would be extremely unlikely.

How unlikely? When FXCollaborative and Steven Winter Associates (SWA) conducted an energy audit on the building in 2019 as part of a larger study that examined the feasibility of electrification, a deep energy retrofit, and Passive House certification, they found that it uses 12,602 MMBtus in a typical year. Over 54% of that energy goes to space heating. Given the carbon footprint of “business as usual” and what an obstacle it is to NYU’s climate goals, the university recognized that a major retrofit plan would be necessary to meet their sustainability, comfort, and compliance goals.

The university initiated a pre-design study to see if a Passive House retrofit was possible, and to roughly determine costs and benefits. NYU engaged FXCollaborative and SWA, who found that certification under PHI’s retrofit standard, EnerPHit, was technically achievable by following what is known as the component path. Instead of measuring the building’s overall performance, the component path places limits on minimum efficiencies on individual building components based on local climate and other factors such as ground conditions, average window sizes, and the efficiency of the building envelope, though buildings must also achieve a certain level of airtightness (1.0 ACH50) and performance. For landmarked buildings that must maintain certain aesthetic features, such as their façade or window design, the component path is oftentimes the only feasible means of obtaining EnerPHit certification. For Rubin Hall, these requirements are shown in Table 1.

The study found that improved insulation, triple-pane windows, ERVs within student residences, and either a VRF or hydronic heating and cooling system, in conjunction with strategies that allow for load reduction and reductions in air leakage would allow Rubin to achieve EnerPHit certification. The study also found that the path to EnerPHit certification was compatible with building-wide electrification, which the university believes is integral to its ambitious commitment to carbon neutrality by 2040.

Screenshot (31)

Considering the Options

Performing such a major renovation will be costly, of course. The increase in upfront costs of Passive House construction present a major obstacle for typical developers. However, NYU is not a typical developer. They are long-term investors in their properties. While some developers may shy away from capital improvements that require millions of dollars and only produce returns years down the line, even a decades-long timeline is not a deterrent for a university that has already owned the building for more than 50 years and has no intention of selling.

Local Law 97 was also a factor when considering how significant the renovations will be. Passed in 2019, the law set emission limits for buildings over 25,000 square feet. Starting in 2025, owners who fail to meet emission targets will face serious fines. These limits will become even more stringent every five years until 2050. While a typical retrofit would ensure compliance with the 2030 threshold or perhaps even the 2035 threshold, emission levels would exceed the 2050 threshold, thereby necessitating two renovations within the span of less than 30 years to avoid fines. Conversely, EnerPHit certification would allow them to do just one major retrofit. As Scheib says, Local Law 97 made EnerPHit not only the futureproof option, but also the greatest value.

Finally, because Rubin is a student residence that experiences a complete turnover every year, the university can close it in the spring when all the students move out, and not reopen until the fall of the following year. The university would have a 15-month window for the renovation during which the building would be empty, and there would be no need to tiptoe around tenants.

As luck would have it, 181 Mercer—a new multiuse building that will include residences for first-year students—is slated to open in the fall of 2023, thereby allowing Rubin to be shuttered for one academic year without a major loss in student accommodations.

Given all these considerations, the school decided to pursue EnerPHit certification. Design began in 2021 with FXCollaborative as the architect, led by partner Michael Syracuse. Steven Winter Associates (SWA) is the LEED and Passive House consultant, AKF Group is the project’s mechanical engineer, and Simpson Gumpertz & Heger is the envelope consultant. Whole building air leakage testing will be provided by SWA. The decision also drew the attention of the New York State Energy Research and Development Authority (NYSERDA), the New York chapter of the American Institute of Architects, the utility company Con Edison, and state and local governments. These organizations have offered the university significant support, including $2 million from NYSERDA. “I felt the love,” Scheib says.

It is difficult to understate the importance of this project, as it promises to be one of the largest EnerPHit projects in the world. Pursuing EnerPHit is proof that NYU is willing to take a leadership role in showing major academic institutions in North America what the path to carbon neutrality will look like. NYU’s size and reputation as a global university puts it in a clear position to lead within the world of academia and beyond, and creating a more sustainable built environment not only bolsters NYU’s profile but sets the bar for what it means for major universities to be serious about addressing climate change. Moreover, Rubin’s similarity to so many other buildings throughout the city means it will be an invaluable template for the owners of similar multifamily buildings and not just the more than 200 buildings within NYU’s portfolio.

These global implications are part of the reason why Scheib is so excited about the project. “At the end of the day, we all need to work for the climate,” he says.

Living History

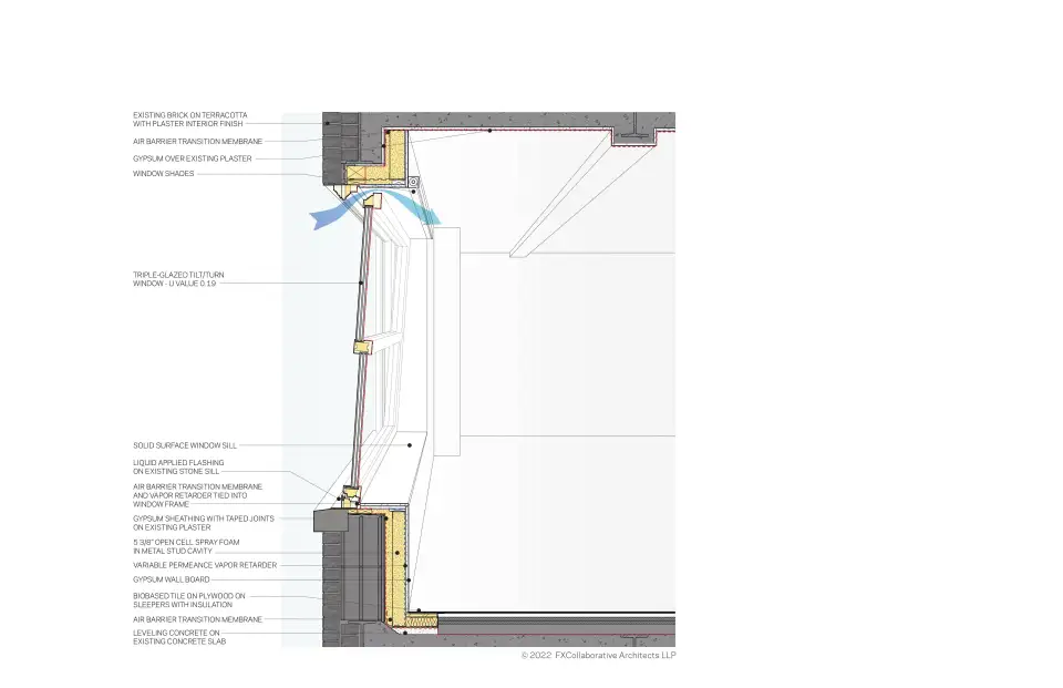
Despite being an extensive retrofit, passersby will hardly notice the changes once the project is complete. The main and penthouse roofs will house much of the building’s mechanicals following approval by the LPC at a public meeting. Meanwhile, improvements to the building’s envelope will occur on the interior to not disturb the historic façade. As the existing plaster proved to be too fragile to function as an air barrier, a continuous quarter-inch-thick fiberglass-faced gypsum board will be attached to the plaster to stabilize it and to serve as the primary air barrier (see Figures 1 and 2). Approximately 4 inches of open-cell spray foam insulation will then be installed between this layer of gypsum board and another layer of gypsum board to provide continuous insulation. The R-value for the insulated wall will be R-20.7. A similar assembly will be installed below grade at the interior of the foundation wall and will exclude a vault beneath the sidewalk that will sit outside of the exterior envelope and be separated by sealed airtight doors.

NYU Figure 1
NYU Figure 2

 The existing windows, which comprise 20% of the above-grade façade, are large—6-feet by 6-feet—and non-historic single pane, steel-framed casement windows. They will be replaced by aluminum, triple-pane, simulated double-hung windows that will be laterally supported from inboard steel studs and thereby avoid placing stress on the exterior wall construction. During the design phase, the team recognized that this is uncharted waters, as there is no precedent for installing these kinds of windows in historic high-rises in New York City. The team was concerned that the need for thermal breaking and insulation within the frame would lead to wider profiles than what the LPC would allow.

However, the team found that the German manufacturer, Schuco, had already developed a prototype for a double-glazed, high-performance window system for historic configurations, and the team collaborated with the manufacturer to create a triple-pane version of the same model that includes a sash that is large enough to fit the openings on Rubin Hall. The resultant window not only optimizes performance and replicates the windows’ historic configuration but allows for full-window tilt-turn operation and can open as a casement window when unlocked so that it can be cleaned from the interior. Additional trim will be added to better replicate the historic design.

Living Comfortably

Student residents from past years may also fail to notice the extent of the renovations on first sight, as the existing configurations on the student floors will remain largely untouched. However, there will be extensive upgrades to the buildings’ mechanicals, and energy models indicate that there will be a 52% projected reduction in site energy usage. The radiators in each room will be removed, as will the two Scotch marine boilers in the basement that feed them, and the mechanical, electrical, and plumbing systems will all be replaced by all-electric systems.

Fresh, filtered air will flow from rooftop dedicated outside air (DOAS) units with energy recovery through an existing network of shafts previously used for plumbing risers to students’ rooms (see Figure 3). It will then be routed through the same shafts to the roof as exhaust. Meanwhile, an air-to-water heat pump system will be providing hot and chilled water to fan coils located in each student room for climate control, and a centralized domestic hot water system will be using the same heat pumps as the heating system. As there is limited room on the roof, the pump sets and heat exchanges will be located in the basement. Luckily the student residences do not have kitchens, so outfitting each unit with appliances and dealing with kitchen exhaust was not a concern.

NYU Figure 3

The new ventilation system will have major benefits with respect to indoor air quality and drastically reduce operational costs. However, this system, in conjunction with the beefed-up insulation and triple-pane windows that are central to Passive House construction will also translate into a major reduction in noise pollution. While it will no doubt improve students’ sleep and mental health, it will also make it far easier for students to focus on their studies and ignore the fact that they live in the navel of the city that never sleeps. As someone who lived in a nearly identical dorm that had no air conditioning, no insulation, and no ventilation systems (Brittany Hall), it was not easy to concentrate on schoolwork while being perched a few stories above the din of Broadway and a few blocks from the East Village, once the dive bar capital of the world.

NYU’s commitment to carbon neutrality by 2040 may sound like a distant goal, but Scheib observes that the students who will make up the class of 2040 have already been born. Meanwhile, current students are already struggling with the existential threat that climate change poses as storms of the century become storms of the decade and the skies of New York City haze over due to smoke from fires burning thousands of miles away.

We are already seeing that the cost of abdication in the face of climate change is far greater not only in terms of lives lost and disrupted by more extreme weather events, but also in terms of dollars as vital infrastructure failures begin to pile up. At some point very soon, the choice of inactivity will be not only cowardly but indefensible even from an economic perspective.

Top image courtesy of NYU Photo Bureau-Shane Miller.

Published: September 30, 2022
Author: Jay Fox
Categories: Retrofit