img 0949

Meadowbrook Lane: A Sustainable Affordable Housing Initiative

By Peter Ng and Irene Rivera

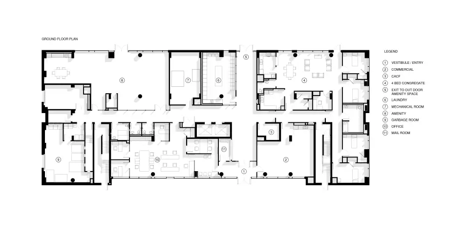
Meadowbrook Lane marks a significant milestone as the first multi-unit residential high-rise building constructed by Windsor Essex Community Housing Corporation (WECHC) in over 30 years. This 10-story development, which was completed in 2023, addresses Windsor's critical need for affordable housing, offering 145 units ranging from studios to three-bedroom apartments. Each residential floor includes shared amenity space, while the ground floor is reserved for multi-purpose facilities, including offices, a laundry room, and a four-bedroom community care unit. 

The project is not just about providing shelter; it is a holistic approach to sustainable living, combining Passive House strategies, advanced building technologies, thoughtful design, and community-centered spaces. The integration of energy-efficient systems, environmentally friendly materials, and resident wellness initiatives establishes Meadowbrook Lane as a flagship model for affordable housing projects. "We are proud to have developed one of the region’s most energy-efficient and sustainable housing projects," said a representative of WECHC. "This building reflects our commitment to providing healthy, environmentally conscious, and affordable homes that residents can truly call their own."

20230911 154042056 ios

Community-Centered Design

From the project’s beginning, Meadowbrook Lane’s design incorporated a sensitivity to community concerns, starting with the placement of the building on the site. The building was deliberately positioned away from the main street and closer to the adjacent neighboring golf course to take advantage of the natural landscape and provide residents with a tranquil living environment. This siting decision also reduces the visual impact of the building in a predominantly low-rise residential neighborhood. 

Meadowbrook Lane has two primary elevations with the west facing the street and the east facing the golf course. They are intentionally two different colors to make the north and south ends of the building appear more slender and less intrusive to the neighboring buildings. The darker east elevation captures heat gain from the morning sun during the winter, while the brighter west elevation reduces heat gain from afternoon sun during the summer. Grouping the large windows and framing them with black and color crosses brings focuses to the facades from a distance, providing a dynamic composition of color figures and patterns in a white and grey background. The elevation design attempts to remove the stigmatization that affordable housing is lifeless, dull, and lacks visual interest. Colors are also used extensively inside the building as a wayfinding tool, giving each amenity area and elevator lobbies an identity.

ground floor plan 01

Community integration and resident well-being are at the heart of Meadowbrook Lane's design philosophy. Each residential floor features a dedicated amenity space designed to encourage social interaction and create a sense of belonging. These spaces offer views of the adjacent golf course, providing a connection to nature and a peaceful atmosphere. 

All photos and figures courtesy of Kearns Mancini Architects Inc.
All photos and figures courtesy of Kearns Mancini Architects Inc.

The ground floor serves as a hub for both residents and the broader community. It includes multi-purpose rooms that can host social events, meetings, and workshops. Large windows in these spaces offer ample natural light and connect indoor activities with the outdoor garden area. The back garden is equipped with seating areas, a barbecue zone, and a restorative space where residents can relax and connect with nature.

For ease of mobility and access to public transit, pedestrian pathways have been carefully designed with visual contrast and tactile elements. These pathways connect the building to the surrounding community, fostering accessibility and inclusivity. Additionally, a more park-like route on the southern side of the site includes seating areas and outdoor exercise equipment to encourage physical activity and outdoor recreation. 

To further promote sustainable transportation, the building features a bike shelter with charging stations for 10 e-bikes and four EV parking stalls with charging facilities. These initiatives aim to reduce dependency on fossil fuel vehicles and to lower greenhouse gas emissions.

A design detail of the exterior wall at the ground floor.
A design detail of the exterior wall at the ground floor.

Sustainability Is a Core Value

In response to global climate challenges and the growing need to reduce greenhouse gas emissions, Meadowbrook Lane was designed to meet Passive House Classic certification standards, focusing on reducing energy consumption while maintaining superior indoor air quality and comfort. The building's envelope employs a drainable EIFS system backed by insulated steel stud sheathing, achieving an impressive U-value of 0.156 W/(m²K). The roof assembly, featuring high-density polyisocyanurate insulation and mineral wool board, achieves a U-value of 0.109 W/(m²K). These design choices drastically reduce heat transfer and energy loss. 

Triple-glazed PHI-certified windows further enhance the building's thermal performance. Manufactured by Wicona and featuring St. Gobain glass, these windows have a U-value of 0.80 W/(m²K) and a g-value of 0.45, ensuring minimal heat loss while allowing adequate solar gain during colder months. 

A critical aspect of the building's design is the continuity of its air barrier. Air sealing is provided by a liquid-applied air barrier system at the walls, a self-adhered membrane at the roof, and a polyethylene air barrier sealed at all joints at the slab and perimeter foundation walls. Mid-construction preliminary testing of an isolated unit was done to identify potential leakages and ensure the construction and sequencing were correct. For example, the window manufacturer was able to improve the air tightness by adjusting the closing mechanisms in the operable windows. The final air tightness test was done following the PHI recommendations for ‘Airtightness Measurement for High-rise Buildings’, and the project achieved an impressive final result of 0.123 ACH50.

The thermal bridging mitigation strategy ensures that structural elements do not create weak points in the building’s insulation; structural thermal insulator pads are used at the frost slab, as well as at the soffit and roof anchor connections. Penetration elements, such as windows and pipes, are carefully sealed to the sheathing membrane with sealant, tapes, and self-adhered membrane flashing. 

The ventilation system utilizes Swegon’s energy recovery ventilation (ERV) technology, continuously filtering and refreshing indoor air. CO₂ sensors are strategically placed in common areas, allowing the system to automatically adjust ventilation rates based on occupancy and air quality. Ventilation is primarily distributed downward through vertical shafts, reducing horizontal duct runs and allowing for the utilization of common ceiling spaces for other services. The repetitive arrangement of mirrored and stacked residential suite types results in efficiencies in domestic hot water pipe runs and ventilation system distributions. 

Get Passive House Articles Like This One Delivered to Your Inbox Subscribe Now

Occupancy sensors control lighting in common areas, ensuring energy is only consumed when spaces are actively in use. Additionally, two water cisterns in the basement are designed for future rainwater collection, supporting landscape irrigation and reducing potable water demand. 

Ecological Integration 

The ecological strategy of Meadowbrook Lane emphasizes sustainability and resiliency. Native and drought-tolerant plant species dominate the landscape, reducing the need for excessive water use and minimizing ongoing maintenance requirements. This approach not only supports local biodiversity but also aligns with water conservation goals. 

The site is located within a 100-year floodplain, requiring thoughtful stormwater management strategies. To address this challenge, the building incorporates stormwater management systems that were designed to regulate drainage and prevent flooding. These systems ensure long-term ecological resilience while mitigating potential risks posed by extreme weather events. 

meadowbrook ph metric diagram tfa 01

Health and Wellness

Health and wellness are integral components of Meadowbrook Lane’s design, and the building adheres to Fitwel certification standards. Fitwel is a building rating system focused on improving occupant health and productivity through evidence-based design and operational strategies. 

The entire building and site are designated as tobacco-free spaces, reinforcing a healthy living environment. Water bottle refill stations are strategically placed in high-traffic areas, including the basement and ground-floor corridors, to encourage hydration and reduce plastic waste. 

Residents have access to both indoor and outdoor fitness amenities. An interior fitness center is located in the basement, while outdoor fitness equipment stations are positioned along the south garden path. Additionally, the special care dwelling unit on the ground floor includes an exterior patio, providing a private outdoor space for its residents. 

An automated external defibrillator (AED) is installed on the second-floor corridor, ensuring quick access in case of emergencies. These wellness-focused features create a living environment where residents can thrive physically, mentally, and socially. 

Resilient and Affordable 

Meadowbrook Lane stands as a pioneering example of sustainable affordable housing, blending architectural excellence, environmental stewardship, and resident well-being. With its Passive House certification, community-focused spaces, and commitment to energy efficiency, Meadowbrook Lane sets a benchmark for multi-unit residential developments. This project not only addresses the immediate need for affordable housing but also serves as a model for resilient, sustainable urban living.

Moreover, the project's success has influenced WECHC to incorporate Passive House methodologies into future developments. "Seeing the tangible benefits of applying basic yet effective first principles of engineering through Passive House design and construction standards at Meadowbrook Place has motivated us to adopt this sustainability-focused model for other developments currently underway," a representative for the corporation said. "We believe that Passive House buildings can play an important role in delivering long-term, energy-efficient, and affordable housing for our community."

Join Our Community, The Reimagine Buildings Collective Learn More
Published: February 7, 2025